Criado e conceituado para atender uma empresa de bouquet de flores com chocolates inaugurado dia 08 de agosto do ano passado no Shopping Eldorado SP, no subsolo1, cumpriu a missão para que foi destinado: um quiosque instagramável, onde todos que passam pelo corredor, param para tirar fotos e colocar nas redes sociais!
Tendo meu projeto executivo passado pelo crivo de 5 engenheiros e arquitetos, que regem a administração técnica do shopping, e passou com 100% de aprovação, sem nenhuma exigência ou correção, ou mudança de design, foi meu reconhecimento como técnica especializada!
Isso para mim é alcançar o sucesso total!
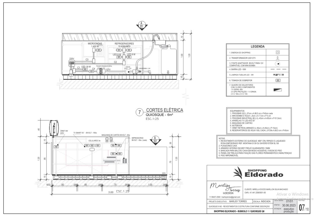
Acompanhei toda da instalação, do início ao fim, e organizei a produção com toda logística, transporte e descarga, e foram 48h de instalação. A elétrica contou com tubulação de conduíte corrugado com alma de aço!
O sistema hidráulico criado exclusivamente para esse cliente, que não tinha ponto de hidráulica para alimentar a cozinha do quiosque, contou com dois reservatórios de 150L, um para água limpa e outro para a saída da pia, com ligação automática para a mini bomba alimentar a torneira monocomando e retirada por uma caixa de detritos móvel, reservatório portátil de 40 litros com rodas, facilinando o transporte e pronto! Rendeu elogios de toda equipe de manutenção do shopping!
Vejam o resultado!
#design #interiores #quiosques #shoppings #shoppingcenter #produção































JDSÇLFJSLFJSLFJSLÇ












































PROJETO EXECUTIVO
Vejam a parte principal do projeto executivo, de minha autoria, com plantas técnicas de elétrica, hidráulica, layout, vistas, cortes e 3D realista! Ficou incrível não acham? E o resultado ficou perfeitamente igual ao projeto. Por isso eu digo que com consultoria, projeto e acompanhamento toda obra fica com 100% de resultado!
Até a próxima!








