ACOMPANHAMENTO DE OBRA DE RECONSTRUÇÃO DE 60M2 DO ESTÚDIO LU RECH NA GALERIA DO TEATRO LEBLON
ESTILO CLÁSSICO
Foram 05 meses entre visita técnica, reunião com cliente, análise de projeto de autoria da Hanna Arquitetura e obra de reforma de responsabilidade técnica do Engenheiro Bruno Scipion, que acabou virando reconstrução total: com demolição de mezanino, retirada de todos os revestimentos, anulação de toda elétrica e hidráulica, criação das novas redes (rede elétrica com aterramento), criação da fachada completa, novo mezanino, escada em L, hidráulica para lavatório de cabelo, cozinha e banheiro. Foram 08 (oito) equipes no total lideradas por mim com gerenciamento e acompanhamento de obra, com o móveis planejados fabricados pela Do Prado Família do Salão. Compra e recebimento de material, adaptações do projeto executivo para melhor atender ao cliente e suas necessidades, produção de todos os móveis planejados e estofados, mesas industriais com iluminação diferenciada para maquiagem, pintura e acabamentos impecáveis, e instalação de dois sistemas de ares condicionados! Foi um super desafio pois toda a loja foi feita sob medida!
VEJA A LOJA PRONTA E INAUGURADA!























Como todo projeto, plantas baixas cotadas, humanizadas, vistas, cortes, 3D, tudo foi analisado para levantamento de material, projeção dos móveis e afins. O projeto é da Hanna Arquitetura. Ao decorrer da execução ele sofreu alterações.






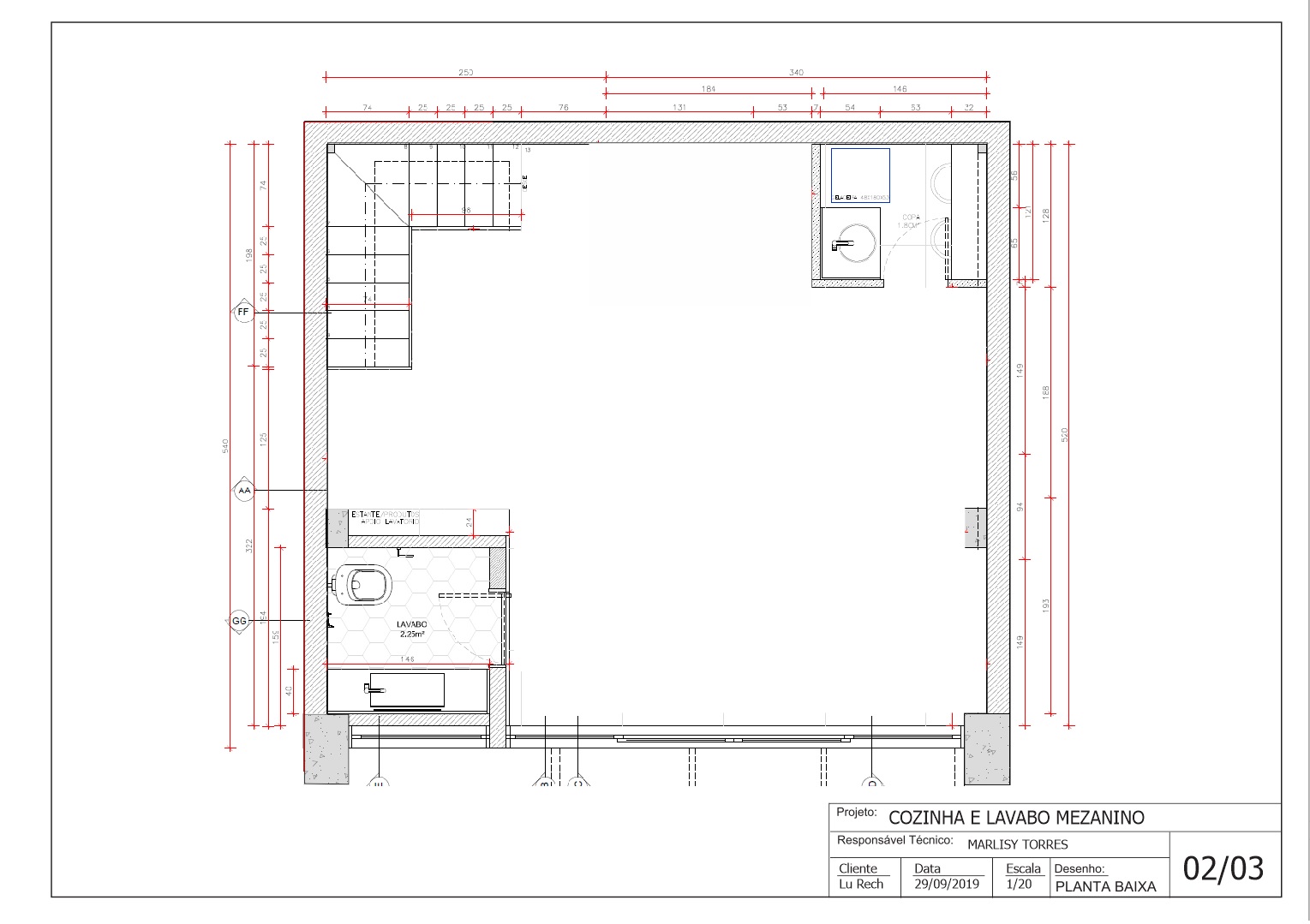
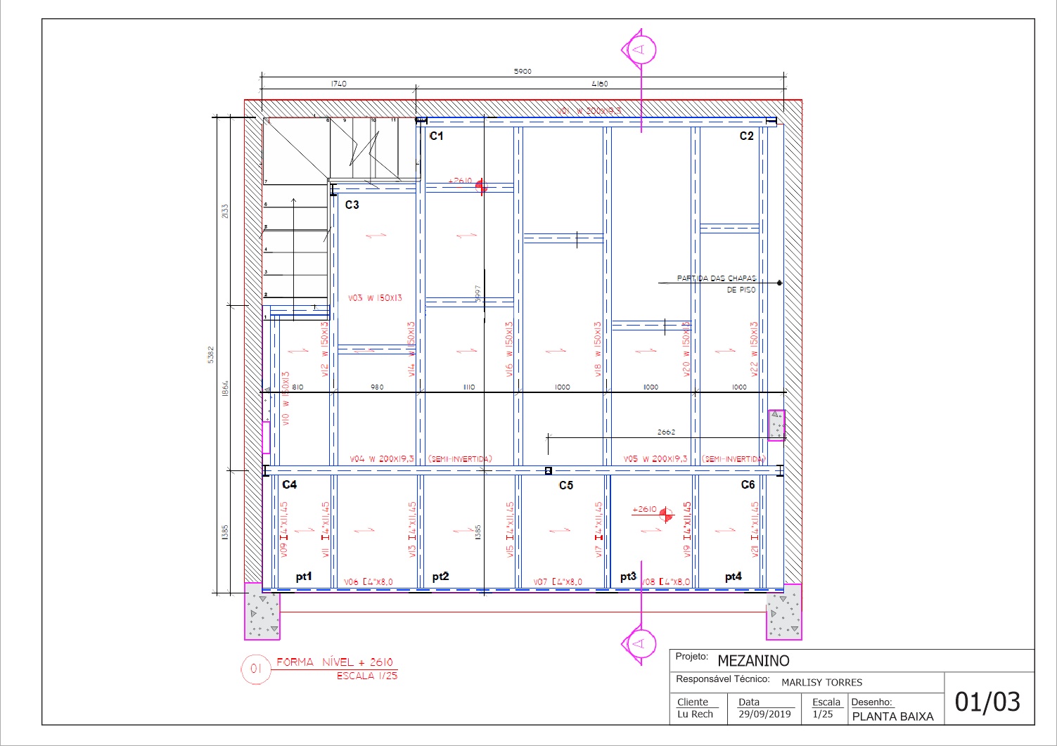
PLANTAS BAIXAS DO MEZANINO, ELABORADAS POR MIM A PARTIR DO PROJETO 3D ENVIADO PELO ENGENHEIRO RODRIGUES.



DESENHOS ADAPTADOS PARA MELHORAR A PERCEPÇÃO DO PROFISSIONAL DE EXECUÇÃO.







A LOJA ERA UM RESTAURANTE. VEJA SUA ESTRUTURA INICIAL.









DEMOLIÇÃO



















RECONSTRUÇÃO
PRIMEIRA PARTE: NOVO MEZANINO



































CRIANDO BANHEIRO E COZINHA










































COLOCAÇÃO DO PISO LAMINADO















CRIAÇÃO DA FACHADA EM SISTEM DRYWALL COM DECORAÇÃO EM BOISERIE E LAQUEAMENTO.















INSTALAÇÃO DOS MÓVEIS E DECORAÇÃO




















Terminamos esta obra na sexta de carnaval do ano de 2020. A inauguração foi linda demais! Confiram nos vídeos abaixo!
Até a próxima obra amigos e clientes! Super beijos!