Projetar a Cia da Beleza foi um grande desafio! Primeiro porque em um ambiente tão pequeno o cliente queria aumentar o atendimento colocando mais um profissional; segundo porque manter o ambiente funcional e esteticamente correto, além de atraente e criar uma personalidade dentro do estilo do contratante, foi um desafio maior ainda!
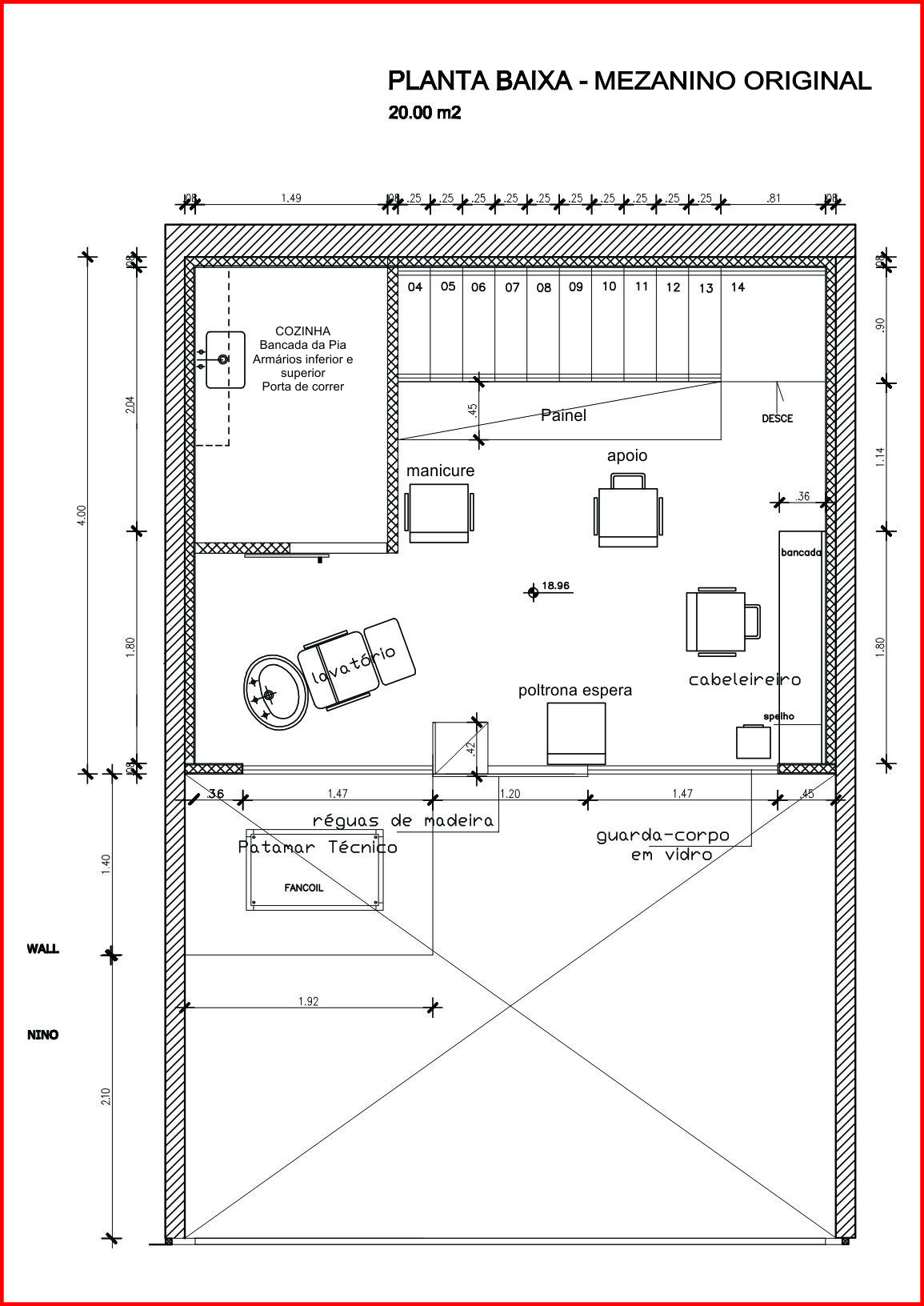
Vejam o ambiente original: à esquerda da entrada o atendimento da cabeleireira, uma poltrona de espera, armário de estoque, lavatório enviesado, uma cadeira de apoio para a cabeleireira, ao lado atendimento de manicure. A micro-cozinha com porta de correr. Um ambiente apertado, com paredes compactas, e sem circulação.
VEJA COMO ERA NA PERSPECTIVA DO ALTO:

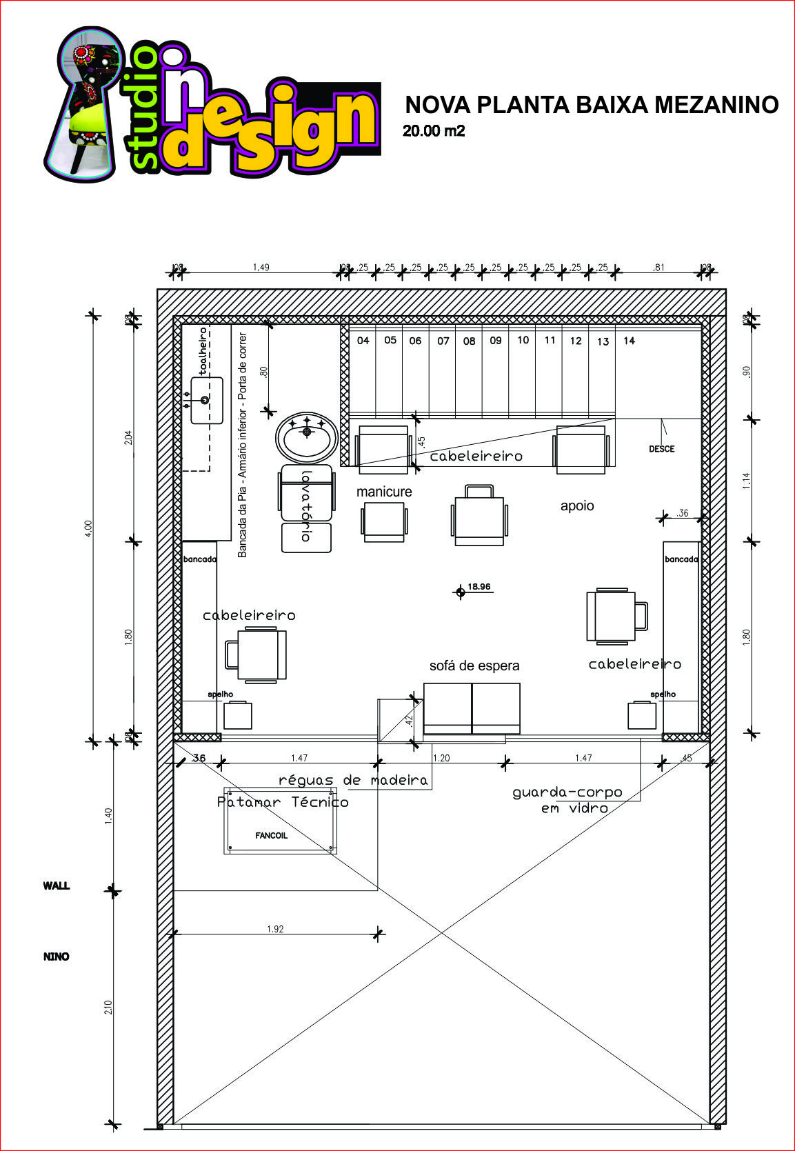
VEJA COMO FICOU DEPOIS DE PROJETADO

Depois de traçar o perfil do cliente e de levantar o estilo dele é o clean, a primeira coisa que fiz foi retirar meia parede da cozinha junto com a porta de correr, assim ampliaria o ambiente dando fluidez. Depois movi o lavatório de lugar, e o coloquei ao lado do atendimento da manicure e diminui a bancada da pia, colocando o armário do estoque entre ela e a nova bancada para o novo atendimento da profissional solicitada. Vejam nas plantas baixas e no 3D abaixo:

Veja agora a planta baixa da minha projeção:

Vejam o 3D do salão original, notem que o piso bege diminui o ambiente, as paredes compactas sufocam por ser muito estreito, sem dizer que o lavatório no meio do caminho ocupa um espaço desnecessário.



Dentro da paleta monocromática do branco, acrescentei o prata o cinza. Projetei um ambiente clean, colocando um grande painel com uma linda loura platinada, tendência do momento, entre duas paredes de cobogó! Isso mesmo: cobogó. Quem estiver no primeiro piso da loja verá o salão e quem estiver no mezanino terá a sensação do ambiente ser maior e arejado. Coloquei uma iluminação adequada para trabalhos de tintura de tons claros e decorei com um lindo lustre decorativo de cristal preto. Forrei as poltronas com estampado prata, preto e cinza, coloquei madeira no toalheiro e na esmalteira de parede. Consegui colocar 03 esperas, 01 apoio, 03 cabeleireiros, 01 toalheiro para 60 toalhas. Vejam o resultado.








O cliente simplesmente aprovou no momento que viu o projeto! A execução dele vai demorar um pouco, o cliente está captando recursos, mas assim que estiver em andamento, as foto virão para o blog. Um grande abraço.
Caso precise, faço consultoria para seu estabelecimento! Entre em contato.